BARN DRIFT
BARN DRIFT HOUSE & GARDEN
LUXURY SELF-CATERING NORTH NORFOLK
Cley-Next-The-Sea, North Norfolk Coast

Barn Drift is a beautiful and sustainable eight bedroom barn conversion on private farmland overlooking the salt marsh and sea in north Norfolk.
THE ULTIMATE LOCATION FOR YOUR FAMILY HOLIDAY, WEDDINGS AND EVENTS
THE HOUSE
Accessed down a farm track, east of the village, on privately owned farmland Barn Drift stands in it’s own extensive grounds, within which are three sheltered, original flint walled gardens accessed directly from the house through large, south facing French doors.
Designed with ease of access in mind, all ground floor areas are fully wheelchair accessible from the drive into the hall, kitchen, dining room, drawing room and ground floor loo.
The hall, kitchen and drawing room all have wide doors leading onto the paved terrace, sheltered under four Persian Ironwood trees providing extensive shade.
With 8 double or twin bedrooms (the choice being yours), 7 bathrooms, 6 ensuite with a choice of showers, bathrooms or both, the accommodation is excellent and suitable for guests with a variety of requirements.
While no bedroom is fully wheelchair accessible, six of the 8 bedrooms are easily accessed via 6 steps with excellent handrails.
The generous design of the house offers complete privacy as well as great spaces in which to get together in immense comfort.
The property has been thoughtfully and sympathetically restored to an exceptionally high standard.
With small or large parties in mind care has been taken to retain the unmistakable charm of the ancient building, combined with every modern convenience, including high speed Wi-Fi, opening windows in all rooms, underfloor heating throughout, good lighting and outstanding rural views in all directions.
You can see the sea and hear the waves.
THE BEDROOMS
You’ll find eight calm, beautifully kept bedrooms designed for proper rest after sea air, long lunches and late nights around the table. The feel is spacious and unfussy, with thoughtful touches that make settling in effortless – whether you’re here with family, friends, or a mixed group of all ages.
At a glance:
8 bedrooms in total, sleeping up to 16.
7 bathrooms, 6 en-suite, with a mix of showers, baths, or both.
All bedrooms can be set up as super-king doubles or generous twins (zip-and-link).
Bedroom Layout
Barn Drift is designed to work well for groups who want both togetherness and privacy.
- From the kitchen level, six bedrooms are reached via a short flight of six steps, with excellent handrails.
- Of these, three have full en-suite bath and shower rooms on the same level
- Two share a large shower room on the same level
- One has an en-suite shower room reached down six steps
- Two further bedrooms sit up a 14-step staircase (with handrails) just off the kitchen, and both have full en-suite bath and shower rooms
Please note: no bedroom is fully wheelchair accessible, though the house is generously laid out and easy to move around in, and six bedrooms are relatively straightforward to access via the shorter staircase.
The Details
Every bedroom is set up for comfort rather than fuss.
Beds are super-king size when made as doubles, and the twins are genuinely roomy.
Linen is White Company, high thread count and pure cotton, with two pillows and a duvet on every bed.
You’ll also find extra blankets, hot water bottles, and a hairdryer in each bedroom.
If you should need further accommodation:
If you’d like a little more breathing space (or a separate base for a couple or two), you can also add The Flat (1 bedroom) and/or The Stables (2 bedrooms, plus garden and swimming pool) nearby.
They’re ideal for guests who’d appreciate a touch more privacy. With the important note that dogs and children aren’t permitted in either.
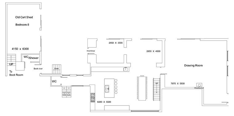
Floorplans
You can access the three floorplans via the buttons below:
THE LIVING SPACES
Barn Drift is made for easy days and unhurried evenings. The kind where everyone can be together without being on top of each other. The main rooms feel generous and calm, with plenty of light, comfortable seating, and a layout that works beautifully for families, friends, and multi-generational groups.
The Kitchen & Dining Space
This is the heart of the house: a welcoming, practical kitchen designed for proper self-catering (and sociable cooking). There’s ample room for prepping, making tea, laying out long breakfasts, and gathering around the table without it ever feeling crowded. It’s the sort of space where conversations drift in and out all day, and where everyone naturally ends up.
The Sitting Rooms
Barn Drift gives you more than one place to put your feet up, which makes a big difference with a larger group. There are comfortable areas for:
- a film night after the beach
- quiet reading and early nights
- children to play while the grown-ups talk uninterrupted
- slow afternoons when the weather turns and no one minds
The mood is relaxed rather than formal.
Practical Comforts
- plenty of space for coats, boots and beach things
- room for children’s gear without clutter taking over
- generous bathrooms and easy circulation through the main rooms
- a layout that supports both togetherness and privacy
On beautiful days the barn can be opened up into its surroundings. The garden spaces are made for morning coffee, post-swim warm-ups, and long lingering evenings as the sun goes down.
THE GARDENS & OUTSIDE SPACES
The garden is a natural extension of the house: calm, airy, and quietly restorative.
Barn Drift’s outdoor spaces are as much a part of the stay as the house itself. Open skies, coastal air, and room to slow down properly. It’s a place where children can disappear to play, dogs can stretch their legs, and the grown-ups can sit with a coffee and feel the calm of the location.
At a Glance
Private gardens with plenty of space to spread out.
Outdoor seating for long lunches, late drinks and quiet reading.
Direct access to walking routes and the wider landscape.
A setting that works beautifully for gatherings, from relaxed weekends to weddings and events.
The Gardens
The gardens are designed to feel natural rather than manicured. Generous, calm, and quietly beautiful. There’s space to wander, space to sit, and space to do very little at all. You’ll find sheltered corners for a book, open areas for games, and the gentle soundtrack of birdsong and coastal weather rolling through.
It’s the kind of garden that encourages slow living: morning coffee outdoors, children barefoot in the grass, and the ease of stepping outside and immediately feeling you’re ‘home’.
Outdoor Dining & Slow Evenings
When the weather plays along (and in Norfolk it often does), Barn Drift comes into its own. The house flows easily into the outside spaces, making it simple to take meals outdoors, gather for drinks, or stretch a simple supper into a long, happy evening. Whether you’re eating together as a big group or finding a quieter spot for two, the outdoor areas make it feel easy.
Coastal Air, Wide Skies, and Walks from the Door
One of the most special things about Barn Drift is how quickly you can leave the house behind and be out in the landscape. With direct access out to footpaths and the surrounding area, it’s easy to start the day with a walk. No car keys, no planning, just out you go. Expect big skies, shifting light, and that bracing feeling you only get by the coast.
For Children
The outside spaces are a gift for families. There’s room for safe, happy chaos. The kind where children are occupied without constant entertaining, and everyone can relax into the rhythm of the day. Sandy shoes, wet coats, beach finds and outdoor play all feel entirely welcome here.
For Dogs
For guests bringing dogs (by arrangement), Barn Drift’s setting makes everyday outings wonderfully straightforward. A quick walk, fresh air on tap, and plenty of space to stretch legs. All with the understanding that this is a working landscape, and dogs need to be kept under control on surrounding tracks and footpaths.
BARN DRIFT, ITS GARDENS AND SURROUNDS ARE LICENSED FOR WEDDINGS AND CIVIL CEREMONIES
If you’re here for a wedding or a special gathering, the gardens offer a beautiful backdrop without feeling staged. There’s a sense of privacy and atmosphere that suits intimate celebrations especially well.
Natural, unforced, and quietly memorable.
Whether it’s drinks outside, photographs in soft evening light, or simply giving guests space to breathe between moments, the outdoor areas help everything feel relaxed and personal.
PRICES & BOOKING
Barn Drift is fully licensed for it all: Legal marriages, drinks events, and celebrations.
Barn Drift is also within walking distance of Cley’s high street shops, pubs and church, which makes the whole weekend feel wonderfully simple.
NEED SOME EXTRA BEDS FOR LARGER GATHERINGS?
ADDITIONAL ACCOMMODATION
THE STABLES
2 BEDROOMS, WALLED GARDEN AND SWIMMING POOL
15 MIN WALK, 2 MINS DRIVE FROM BARN DRIFT
THE FLAT
1 BEDROOM UP UNDER THE EVES
15 MIN WALK, 2 MINS DRIVE FROM BARN DRIFT
FARM TRAILER
1 KING SIZE BED
100 YARDS FROM BARN DRIFT & 50 YARDS FROM THE HANGAR
CAMPING
MAX 20/30
20 YARDS FROM BARN DRIFT


























































